

Liane got a teaching job nearly an hour away from our previous residence. We've decided to move to a place somewhere in between my work and hers. Since most of that area is farmland the pickings are slim, so we thought we were going to build a house. We spent well over a year and a half pushing down that path, but in the end we ended up buying a used one and remodeling (which, as it turns out, is sort of like building). All of this two plus year adventure is chronicled here for your enjoyment.



Today's topic is buying a home. Enjoy.DAY ONE:March 1st:Enter the scene a young happy romantic couple smiling with their beaming children they are pre-approved and very happy as they saunter out of the bank with a colorful picture of their dream home in their hands.June 1st:Me (With a glittering face): What else do we need to do to be able to secure the money for our house?Bobby the Banker: "Well your credit is perfect and you make way more money than you need to live on and have a lot in your savings account and it looks here as if you have the signatures of all of the living presidents on the bottom of your resumes. You will be just fine, we should have you in your new home in a couple of months.Me: Great wonderful you are the best banker ever.Bobby: "I know, I know...now sign here on the dotted line...(insert theme to Jaws).ONE DAY BEFORE CLOSINGRing. Ring....Me: "Hello"Bobby: "Its Bobby the Banker, I'm working remotely today (he says from his iPhone from the golf cart between Tee #4 and the green) but I noticed that you failed to include the blue prints to the sheik of Iran's bedroom along with your credit application (mutes phone to snigger to the under-writer)....silence..Me: "Are you serious"?Bobby the Banker: "No, I'm just kidding... seriously that would be ridiculous... we meant the sheik of Oman. Anyway, get that to me by tomorrow or we won't be able to close.Several weeks pass and thanks to a covert operation run by an ex-CIA agent and a group of underground spies working in close contact with the mafia and the Afghan rebels, I get the plans in my hand and pay off the spies. Fortunately for them only one of them dies recovering the blueprints.THREE WEEKS AFTER ORIGINAL CLOSING DATERing....ring..Me: "Okay Bobby, I managed to get those blueprints."Bobby: "Really? (flipping through the Psychological Torture Methods for Dummies manual while his caddy fishes for an iron at the 16th tee)... "Now we noticed in the well report that you submitted last week that there was no test done for Kryptonite" (barely containing himself as the lender tips the caddy with a hundred dollar bill).Me: "Okay I didn't see that in the list of things to test our water for, but then again I only read the first 647 pages of the FHA requirements before I fell asleep. "Bobby: "Well it is pretty clearly stated there on page 648 just have that faxed over to me when you are done."Click.Me to my wife: Sweetie I need to rent the space shuttle to go get some krpytonite for the bankers,My wife: "Okay, well I already sold my hair and all of the family heirlooms last week to pay the rent since we aren't allowed to use our bank account or any of our credit cards so that the lender doesn't ask for more photocopies.Me: "We ran out of ink for the photocopier again, huh?My wife: "Yes and I've already robbed the kids piggy banks twice, we really can't afford to make any more copies, plus the bank is asking us for the interest on the construction loan that is now overdue from the delays and we owe another month of rent on our apartment that we hadn't planned on.Me: "I'll think of something."AN HOUR LATER:Me: (to the black market organ vendor on the corner): So you can really only give me $10,000 for this kidney.... Okay go ahead and take it...can you give me more if you don't use any anaesthesia?FIVE WEEKS AFTER ORIGINAL CLOSING DATE (from my hospital bed)Ring, ring forever...Bobby's voicemail picks up..."Today is Monday November 1st, I will be out of the office for the next month in celebration of the ...umm...Thanksgiving Holidays...yeah... feel free to reach any of my associates if you require immediate assistance...Me: (after three hours of calling everyone at the bank..getting transferred to Bobby's cell phone...by a desperate secretary...)Ring..Ring...Bobby: "Hello..how did you get this number?...)Me: "I got your Kryptonite".Bobby: (getting desperate) "Well good. Did you have the County Official certify that the Kryptonite was captured according to the state code, I will need a letter in triplicate, signed by your paternal great-grandfather as well as a relative of the author of the original superman novels."Me: "But both of those people are dead.Bobby: "Well that isn't our fault, the government has made mortgages a lot harder for everyone this year."SOME INNUMERABLE NUMBER OF WEEKS AFTER ORIGINAL CLOSING DATE:My Four Year Old Daughter: (Eating thanksgiving dinner- on top of a cardboard box shared with her brother in the middle of my furniture-less living room)"Daddy, why can't we move into our new house now?"Me: "Daddy isn't really sure sweetie... I couldn't get on the internet to find out who wrote the superman novels because the cable company has already moved our phone and internet over to our new house..














Several months ago I began taking photographs of our house in anticipation of putting it up for sale this summer. On web listings it's easy to show many photos, but there's always one, main photo associated with each listing on search results, and of course only one photo can be used with any paper based listing.
I knew it might be tricky getting one good photo so I wanted to make sure I took pictures before everything grew out, and during the blooming season so we could choose the best ones when the time came. I was somewhat scientific about it. I marked off spots on the sidewalk across the street where I’d place the tripod so I could be consistent, thinking I might use Photoshop to merge a couple of shots together later. I bracketed the exposures, shot at different angles, distances and zoom settings. I shot on days with various lighting and weather conditions as well. Normally subjects like this look a lot better when the sky is blue and the sun is overhead or behind the camera. Given the orientation of the house that angle isn’t possible, and when the sun is out strong there are shadows on the front of the house, so I may have to end up in Photoshop bring those shadows out. Or I may have to end up using a shot from an overcast day and then placing a better looking sky into it, which will not be easy since I have to work around at least one tree with sky in the background. I find it strange how little attention seems to be paid to this sort of thing in some of the house listings I see. Sometimes an expensive house will be shown with a crummy little snapshot and an overcast sky in the background.
At any rate I now have lot of pics of the front of the house, nearly all of which don’t show it effectively. It’s a hard house to shoot because a tree obscures the area around the front door, one of the main points of interest in any house, unless the photo is taken at an angle that obscures other areas of interest. There’s just no way to get one, good shot of the whole front.


A couple of weeks ago we saw a house that had an HVAC vent that blended into the wood floor very effectively. Once you see things like this they become obvious. I don’t know that I would have thought to ask about such a thing before seeing it though.
This same house had another feature (not pictured) that intrigued me. The steps down to the basement were in the middle of a floor, rather than up against a wall as in most houses. So effectively there was just a hole in the floor with a railing around it, and the steps descended below. It struck me as different and cool. If we end up not having an upstairs on our house I would very much like to build the steps this way, which is how Nicole set it up on her initial draft. We may even be able to leave them mostly open if there’s also a flight to an upstairs. We’ll see.
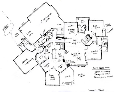
Sunday we went to look at a model home that both Nicole (who designed it) and Chris (our realtor) thought would be good for us to see based on the style of house we want to build. They came up with the suggestion of this specific house independently of one another, claiming it had several characteristics on our list of wants. So we trucked all the way up north in what was close to a 30 minute drive. Having grown up in Louisville I know that 30 minutes doesn't seem like much of a drive to people who live in larger cities, but in Fort Wayne it's an epic journey. Perspectives change. When I first moved here I remember a lady in a store telling me where I could find something I was looking for and she said, "...but that's all the way across town." Well, all the way across town amounted to maybe 25 minutes, which to me was nothing back then. Now a drive of 25 or 30 minutes feels like a journey to Mecca or something.
Liane confirmed (via their website) the hours it would be open on Sunday and we drove all the way up to the very nice, new addition to find it. We found it with a note on the door informing us that nobody would be there due to "staffing." Evidently they don't have enough staffing to keep someone in their model while it is "open" or they don't have enough to have someone update their listing on their website.
So we walked around the house looking in through the windows. It occurred to me at this point that we might look rather suspicious. Nicole had told us that the house recently had a break in and many items were stolen. Here we are walking around looking in windows. I guess a trip downtown for questioning would have added a bit more intrigue to an otherwise (nearly) wasted trip. Actually we were able to see some of what they were talking about looking in from the outside so it wasn't a complete waste.

